.png)
I haven’t started building yet—but this is about more than a building. It’s about supporting my family, creating community, and helping fill the missing middle gap in housing.

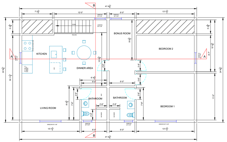
Peter is at the beginning of his laneway suite journey in Calgary, where he hopes to build a two-bedroom unit above a four-car garage behind the home where his mother currently lives. As a long-time DIY-er, Peter plans to take on much of the construction himself. His motivation? A personal dream to build a home, a desire to support his aging mother on a low income, and a growing frustration with the lack of "missing middle" housing options in Canadian cities.
Through this journey, Peter is stepping into the role of a citizen developer—someone who takes housing into their own hands to help build more inclusive, connected communities from the ground up.
Type: Laneway Suite (Above-Garage Unit) – In Planning
Location: Calgary, Alberta
Status: Permitting phase
Planned Size: Estimated larger unit (original plan was two ~500–550 ft² suites)
Planned Layout: 2 bedrooms + bonus room above 4-car garage
Unique Feature: Designed with future flexibility — potential to split into 2 units as part of a larger redevelopment

Q: What inspired you to take on this project?
Peter: I’ve wanted to build a house for as long as I can remember. My mom has lived on a low income for most of my life, and helping her stay close to our family was a big driver when we bought this property. More recently, I became really passionate about missing middle housing. I was watching videos, reading about urbanism, and it just clicked for me—why are we only building single-family homes or high-rises? I want to help change that, starting in my own backyard.
Q: You plan to build much of it yourself. What appeals to you about the DIY route, and what’s been your biggest hurdle?
Peter: There’s something deeply satisfying about being able to say, “I built that.” I’ve done everything from flooring and backsplashes to full roof replacements. The DIY route is daunting, but exciting. The biggest challenge has been realizing how much red tape there is even when building for yourself. I’ve learned I’ll need to essentially register as a builder—get insurance, warranty my work, and be very clear about what I can and can’t legally do, like plumbing or electrical. It’s not simple, but it’s doable.
Q: How have you approached financing, and what’s been the biggest challenges?
Peter: Initially, I thought we’d just self-fund. My wife and I have been saving for a decade. But most people I spoke to in the industry thought that was wild. I started looking into builder loans, but hit a wall—lenders wanted to know who my builder was, and well, it’s me. That’s still a grey area. For now, I’m likely to use a HELOC against the existing home, since we’ve built up equity. I’ve realized that financing these kinds of projects isn’t always straightforward—especially if you’re trying to build it yourself—but I’m hopeful that tools like this Middle Housing Finance Hub will make it easier for others to take that first step.
Q: How has the permitting journey in Calgary gone, and what have you learned?
Peter: Navigating permitting has been a learning curve. The City of Calgary’s website outlines the process, but once you get into the details, there are a lot of nuances and exceptions that aren’t always clear. For example, I found out that while the rules for how big your garage and suite can be look similar on paper, the amount of flexibility the city allows for each one is actually different. I only figured that out after a lot of back-and-forth with the city. I’ve had to revisit my design to reduce the upstairs footprint, which wasn’t what I expected going in. That said, it's helped me realize how important it is to dig into the fine print early—and that even when things seem unclear, solutions do exist if you keep asking questions.
Q: As a first-time builder, what helped you navigate the learning curve and stay motivated?
Peter: One thing I didn’t expect was just how overwhelming the early stages can feel when you’re trying to do it on your own. From figuring out what’s allowed on your lot to understanding financing or how to plan your build, there are so many unknowns. That’s where the Mddl Community really helped. Their workshops and tools gave me a clearer picture of what to expect, and being able to talk things through with Alkarim or Darlene (the co-founders of Mddl), or even just connect with other homeowners going through similar projects, made the process feel a lot less lonely. It’s empowering to know you don’t have to figure it all out by yourself.
Q: How has this journey impacted your family and community goals?
Peter: My mom’s turning 74 and it means a lot to help her age in place — close to my sister, my niece, and her own social circle. We already rent the basement to a young family, and it’s turned into this lovely mini-community. Their young son treats my mom as their second and third grandma. It’s shown me that middle housing isn’t just about units—it’s about people watching out for each other, building real connections. That’s the kind of city I want to live in.
Q: What advice would you give someone just starting their own ADU project? What’s next for you?
Peter: Don’t be intimidated. If you already own the land, taking the first step toward building is often easier than people expect. Tools like Mddl’s pro forma calculator can help you run the numbers and see if a project makes sense financially—and even if you don’t have everything figured out, getting started is the best way to learn.
For me, the next step is finalizing permitting and bringing the vision to life. I’ve chosen a hands-on, sometimes slower path, but it’s been incredibly rewarding. This journey has shown me that with the right support and a little persistence, regular people can shape the kind of communities we want to live in.